Description
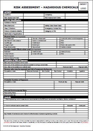
The purpose of this risk assessment is to evaluate the basic properties of a hazardous chemical plus the hazards, risks and controls associated with its intended use in the workplace. Other risk assessment criteria include evaluation of exposure groups, health effects, monitoring, first aid requirements plus more.
Format: Word
Pages: 2




